Construcción

A nosa galería de obras realizadas

rehabilitación de hórreo tradicional

Emprazamento: Lg O Alcouce, Vilaboa

Uso: almacén

Constructora: Carpinteiría Miguel Ángel

obradoiro de panificación artesán Rogelio Acuña Acuña

Emprazamento: polígono de Barro parcela A-20

Uso: productivo,  alimentación, obra nova

Constructora: ASAI SL

CasaTouriño

Emprazamento: Lg Cruceiro do Vento, Marín

Uso: residencial, vivenda Unifamiliar illada obra nova

Constructora: Mares SL

clínica dental Óscar Balboa

Emprazamento: rúa Oliva, Pontevedra

Uso: sanitario 

Constructora: Construcatro SL

casa Peinador

Emprazamento: Mondariz Balneario

Uso: residencial, obra nova

Constructora: construcciones KFC

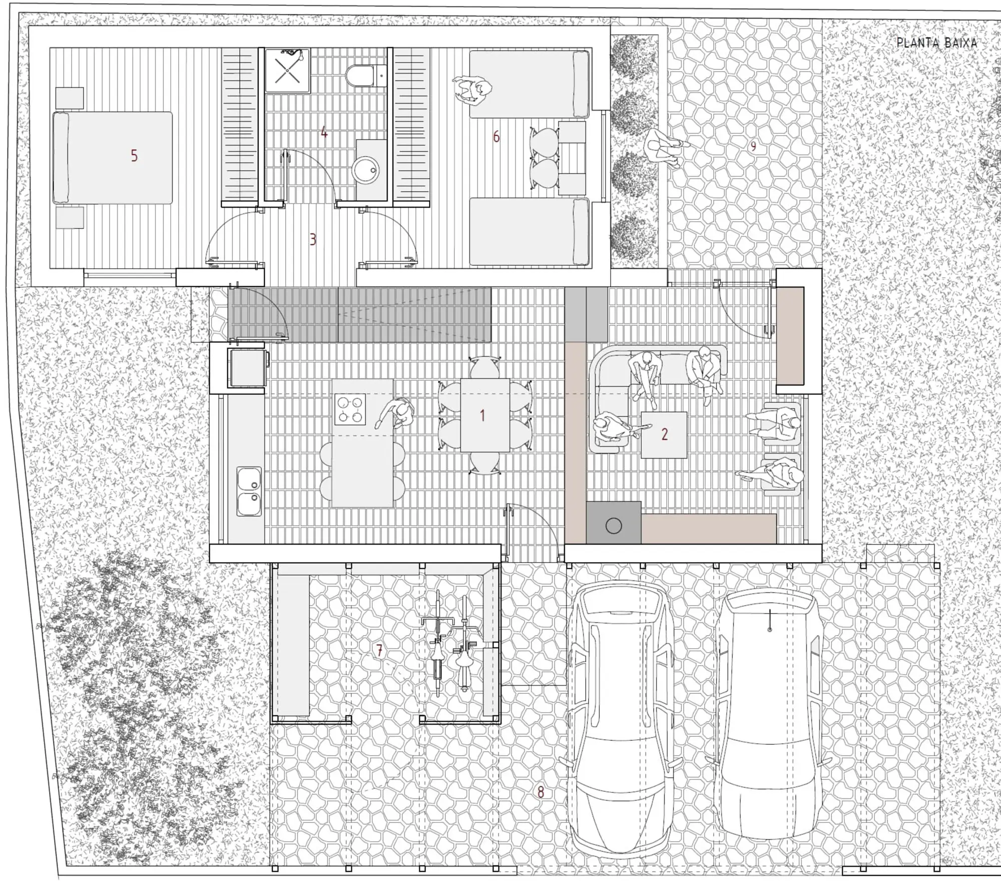
Casa Ureña

Emprazamento: Matamá, Vigo

Uso: residencial, vivenda Unifamiliar illada obra nova

Constructora: construcciones Monterromán SL

rehabilitación casa cartógrafo

Emprazamento: Meira , Moaña

Uso: residencial, rehabilitación en solo rústico

Constructora: Construcatro SL

casa chouteira

Emprazamento: lg A Chouteira, Lougares, Mondariz

Uso: residencial, rehabilitación solo rústico

Constructora: construcciones KFC

rehabilitación infravivenda, casa Outeiro

Emprazamento: Lg Outeiro, Vilaboa

Uso: residencial, rehabilitación 

Constructora: construcciones López Galán SLU

campamento de cabanas

Emprazamento: lg Casfalcón, vilaboa

Uso: turístico 

Constructora: grandepedra comtract

hotel boutique: aldea calma

Emprazamento: Lg Outeiro, Bordóns Sanxenxo

Uso: turístico, rehabilitación solo rústico

Constructora: Sanívoros SL

local baixo cambio de uso: aloxamento turístico

Emprazamento: R/ Gaiteiro Portela , Pontevedra

Uso: turístico, cambio de uso de baixo comercial

Constructora:Ponteclima SL

Grandepedra
Privacy Overview

This website uses cookies so that we can provide you with the best user experience possible. Cookie information is stored in your browser and performs functions such as recognising you when you return to our website and helping our team to understand which sections of the website you find most interesting and useful.